This reconfigured kitchen functionality plus while working in harmony with its environment
Project Brief:
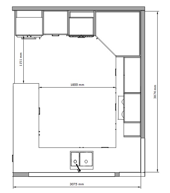
This 90’s style kitchen was confused and
congested. The cabinetry had a variety
of different heights and it’s layout was
impractical for use, particularly for cooking
and cleaning tasks. Of the existing
kitchen the homeowners wanted to retain
a large corner pantry, and wanted a
neutral colour palette.










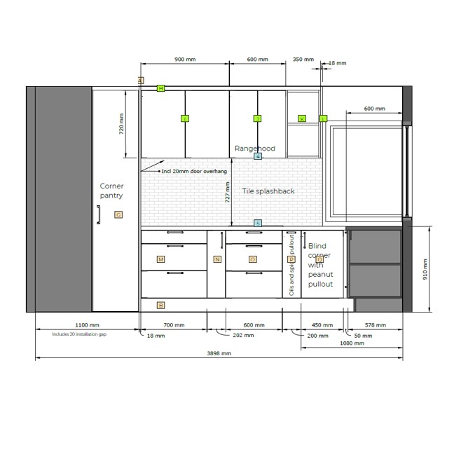
This kitchen demonstrates serene modernity. The U-shaped layout maximizes every inch of footprint, while the material choices ensure the kitchen feels like a natural extension of the landscape seen through those generous windows. The use of horizontal-grain wood (Ash Woodline) uppers against silk-matte beige (Baikal) lowers creates a visual “lift.” It keeps the heavier elements at eye level feeling airy while anchoring the room with clean, bright cabinetry below. Rather than a flat, sterile finish, the backsplash features handmade-style subway tiles. Their subtle undulation catches the under-cabinet LED light, adding depth and movement to the walls without the need for loud colors. Seamless integration and functional flow were a key component of this design. From the integrated wine rack to the induction cooktop, the design prioritizes “visual silence.” Appliances are tucked away or flush-mounted to ensure the long, clean lines of the benchtop remain uninterrupted and allow for plenty of prep and cooking space. The combination of natural light and cool-toned task lighting is softened by the warm oak-style flooring, preventing the space from feeling clinical.
Designer’s Note: The real hero here is the open shelving niche—a clever “breath” in the cabinetry that allows for personality (and a quick reach for a cookbook) without breaking the streamlined silhouette.
The result is a serene space that draws the eye to the views beyond. It provides a practical workspace that is a joy to use.
Construction completed by partner Refresh Renovations