Kitchen update for a rental investment property with a focus on economical and durable upgrades
Project Brief:
This overseas owner wanted a wallet friendly update for their investment property kitchen. She was also concerned about durability wanting hardware that could handle a bit of abuse by renters.










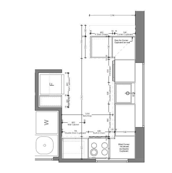
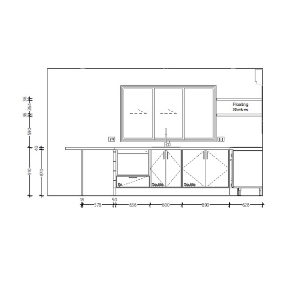
This project demonstrates that a sophisticated, modern aesthetic can be achieved through strategic, economical decision-making. By prioritizing visual refresh and durable surfaces over structural overhaul, we transformed this kitchen into a bright, contemporary workspace while remaining highly cost-conscious. To maximize the budget, the design utilizes cabinet doors rather than expensive drawer banks. This choice provides a clean, uniform look and ample vertical storage while significantly reducing hardware and manufacturing costs. We selected a High-Pressure Laminate (HPL) benchtop in a refined, stone-look finish. This offers the durability and visual appeal of natural stone or quartz at a fraction of the investment, providing a resilient surface for daily meal prep. By leaving the existing wall-mounted extraction in place, we avoided extra costs associated with new ducting, electrical rerouting, and structural patching. The new cabinetry was designed to integrate seamlessly around this existing feature.
Designer’s Perspective: This renovation proves that “modern” doesn’t have to mean “expensive.” By working with the home’s existing footprint and choosing high-value materials like HPL, we’ve created a space that feels premium without the premium price tag.
The result is a bright kitchen attractive to renters with sturdy materials designed to handle rental use wear.
Construction completed by partner Refresh Renovations